Перейти к контенту
Подбор и сравнение проектов домов от застройщиков Московской области
Подборщик домов
Калькулятор сметы
Калькулятор площади
Форум
Блог
Главная
›
Каталог проектов
›
Проект U-378-1K
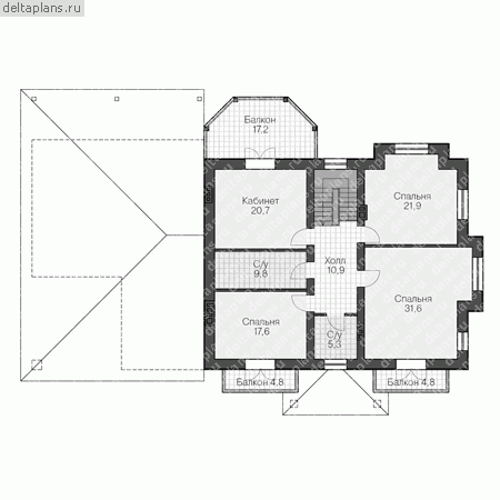
Проект U-378-1K
Застройщик: Юникс-Строй
378.33 м²
1 / 3
🏠
378.33 м²
📐
2 этаж
🧱
Кирпич
Похожие проекты
Похожие по цене
Похожие по площади
Проект D-207-1D
2 этаж
от 31 020 000 ₽
→
Дом по проекту «ЗС 16-17» - Золотое Сечение
4 спальн. · 3 санузл.
от 31 000 000 ₽
→
Проект L-378-1K
3 этаж
от 30 996 000 ₽
→
Дом по проекту «ЗС 230-24» - Золотое Сечение
5 спальн. · 4 санузл.
от 47 250 000 ₽
→
Проект L-378-1K
3 этаж
от 30 996 000 ₽
→
Дом из газобетонных блоков С-378 ГБ «Аден»
4 спальн. · 2 санузл. · 4 этаж
от 16 448 000 ₽
→
На сайт застройщика