Перейти к контенту
Подбор и сравнение проектов домов от застройщиков Московской области
Подборщик домов
Калькулятор сметы
Калькулятор площади
Форум
Блог
Главная
›
Каталог проектов
›
Проект U-383-1P
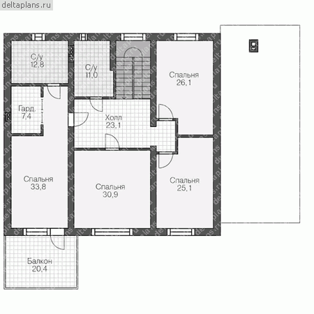
Проект U-383-1P
Застройщик: Юникс-Строй
383.36 м²
1 / 3
🏠
383.36 м²
📐
2 этаж
🧱
Пеноблок
Похожие проекты
Похожие по цене
Похожие по площади
Проект J-328-1K
1 этаж
от 26 846 800 ₽
→
Проект U-327-1K
3 этаж
от 26 846 800 ₽
→
Двухэтажный дом «BONSON» с патио
4 спальн. · 3 санузл. · 2 этаж
от 26 862 000 ₽
→
Дом из газобетонных блоков С-384 ГБ «Балу»
4 спальн. · 4 санузл. · 4 этаж
от 16 096 000 ₽
→
Дом из керамических блоков С-384 КЕ «Балу»
4 спальн. · 4 санузл. · 4 этаж
от 16 096 000 ₽
→
Кирпичный дом С-384 К «Балу»
4 спальн. · 4 санузл. · 4 этаж
от 17 263 000 ₽
→
На сайт застройщика