Перейти к контенту
Подбор и сравнение проектов домов от застройщиков Московской области
Подборщик домов
Калькулятор сметы
Калькулятор площади
Форум
Блог
Главная
›
Каталог проектов
›
Проект U-491-1P
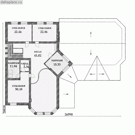
Проект U-491-1P
Застройщик: Юникс-Строй
490.93 м²
1 / 4
🏠
490.93 м²
📐
3 этаж
🧱
Пеноблок
Похожие проекты
Похожие по цене
Похожие по площади
Проект коттеджа «Rockville»
6 спальн. · 5 санузл.
от 34 350 000 ₽
→
Проект коттеджа «Rockville»
6 спальн. · 5 санузл.
от 34 350 000 ₽
→
Проект A-229-1D
2 этаж
от 34 399 500 ₽
→
Проект R-490-1K
3 этаж
от 40 180 000 ₽
→
Проект двухэтажного дома "Белый шум" из бруса
6 спальн. · 2 этаж
от 32 044 064 ₽
→
Проект E-492-1K
3 этаж
от 40 385 000 ₽
→
На сайт застройщика