Перейти к контенту
Подбор и сравнение проектов домов от застройщиков Московской области
Подборщик домов
Калькулятор сметы
Калькулятор площади
Форум
Блог
Главная
›
Каталог проектов
›
Проект U-690-1P
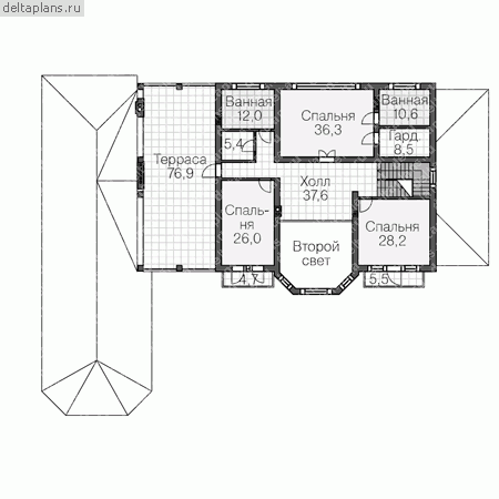
Проект U-690-1P
Застройщик: Юникс-Строй
690.0 м²
1 / 4
🏠
690.0 м²
📐
3 этаж
🧱
Пеноблок
Похожие проекты
Похожие по цене
Похожие по площади
Резиденция «Бонвиль»
6 спальн. · 7 санузл. · 2 этаж
от 48 228 000 ₽
→
Проект S-587-1K
2 этаж
от 48 109 400 ₽
→
Двухэтажный коттедж «Блэквуд» в стиле Хай-Тек
5 спальн. · 7 санузл. · 2 этаж
от 48 084 000 ₽
→
Проект E-693-1K
3 этаж
от 56 826 000 ₽
→
Проект коттеджа «Rockville»
6 спальн. · 5 санузл.
от 34 350 000 ₽
→
Проект коттеджа «Rockville»
6 спальн. · 5 санузл.
от 34 350 000 ₽
→
На сайт застройщика