Перейти к контенту
Подбор и сравнение проектов домов от застройщиков Московской области
Подборщик домов
Калькулятор сметы
Калькулятор площади
Форум
Блог
Главная
›
Каталог проектов
›
Проект V-043-1K
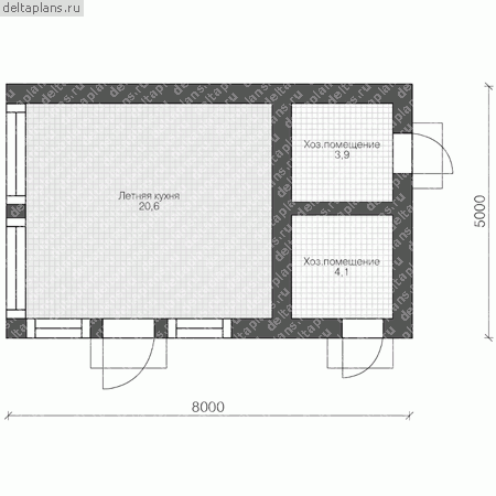
Проект V-043-1K
Застройщик: Юникс-Строй
42.42 м²
1 / 2
🏠
42.42 м²
📐
1 этаж
🧱
Кирпич
Похожие проекты
Похожие по цене
Похожие по площади
Дом «Константинов» 8х10 м
3 спальн. · 1 этаж
от 3 470 000 ₽
→
Охотник (7x8)
2 спальн. · 1 санузл. · 1 этаж
от 3 469 000 ₽
→
Дом «Ярославов» 7х7 м
2 спальн. · 5 этаж
от 3 490 000 ₽
→
Проект каркасного дома КП-63
1 этаж
от 3 300 000 ₽
→
Проект каркасного дома КП-453
1 этаж
от 4 055 000 ₽
→
Проект одноэтажного каркасного дома "Кассиопея"
1 спальн. · 1 этаж
от 3 428 989 ₽
→
На сайт застройщика