Перейти к контенту
Подбор и сравнение проектов домов от застройщиков Московской области
Подборщик домов
Калькулятор сметы
Калькулятор площади
Форум
Блог
Главная
›
Каталог проектов
›
Проект V-119-1P
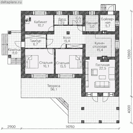
Проект V-119-1P
Застройщик: Юникс-Строй
119.0 м²
1 / 2
🏠
119.0 м²
📐
1 этаж
🧱
Пеноблок
Похожие проекты
Похожие по цене
Похожие по площади
Проект двухэтажного коттеджа "Флуэри" из газобетона
3 спальн. · 2 этаж
от 8 329 000 ₽
→
Одноэтажный дом «Казань» | ЭкоТех
3 спальн. · 2 санузл. · 1 этаж
от 8 329 000 ₽
→
Арарат (9.8x8.8)
4 спальн. · 2 санузл. · 2 этаж
от 8 327 000 ₽
→
Проект К-12 9 на 7, площадью 119 за 4 016 250 руб
4 спальн. · 2 этаж
от 4 016 250 ₽
→
Проект К-12 9 на 7, площадью 119 за 4 016 250 руб
4 спальн. · 2 этаж
от 3 998 400 ₽
→
Проект К-72 8 на 8, площадью 119 за 4 272 000 руб
3 спальн. · 2 этаж
от 4 272 000 ₽
→
На сайт застройщика