Перейти к контенту
Подбор и сравнение проектов домов от застройщиков Московской области
Подборщик домов
Калькулятор сметы
Калькулятор площади
Форум
Блог
Главная
›
Каталог проектов
›
Проект V-127-1P
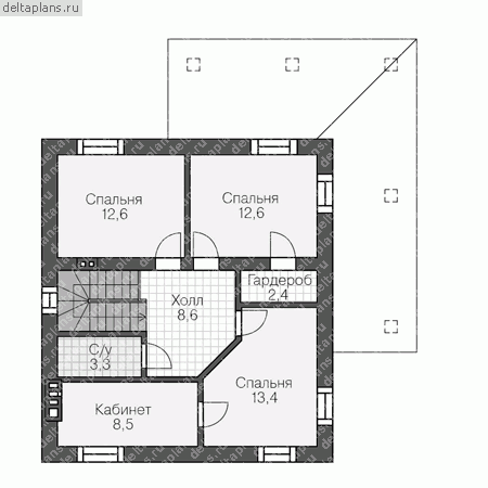
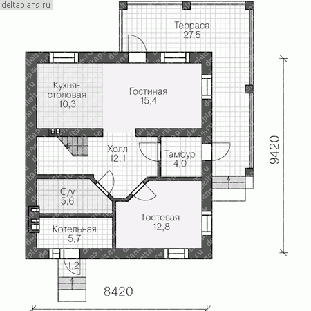
Проект V-127-1P
Застройщик: Юникс-Строй
127.28 м²
1 / 3
🏠
127.28 м²
📐
2 этаж
🧱
Пеноблок
Похожие проекты
Похожие по цене
Похожие по площади
Проекты домов из газобетона Вилла 2 XS под ключ
4 спальн. · 2 санузл. · 2 этаж
от 8 911 400 ₽
→
Проект К-193 10 на 14, площадью 264 за 8 913 000 руб
4 спальн. · 2 этаж
от 8 913 000 ₽
→
Каркасный дом С-235 КР «Берген»
4 спальн. · 2 санузл. · 4 этаж
от 8 917 000 ₽
→
Проект X-127-1S
2 этаж
от 2 508 204 ₽
→
Традиция 11
5 спальн. · 2 санузл. · 2 этаж
от 6 610 000 ₽
→
Традиция 11
5 спальн. · 2 санузл. · 2 этаж
от 6 610 000 ₽
→
На сайт застройщика