Перейти к контенту
Подбор и сравнение проектов домов от застройщиков Московской области
Подборщик домов
Калькулятор сметы
Калькулятор площади
Форум
Блог
Главная
›
Каталог проектов
›
Проект V-134-1P
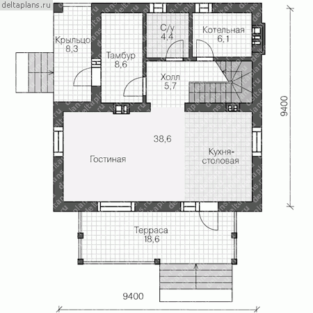
Проект V-134-1P
Застройщик: Юникс-Строй
133.11 м²
1 / 3
🏠
133.11 м²
📐
2 этаж
🧱
Пеноблок
Похожие проекты
Похожие по цене
Похожие по площади
Проект одноэтажного коттеджа "Онегин" из газобетона
3 спальн. · 2 этаж
от 9 322 000 ₽
→
Дома из керамических блоков Бунгало S+ под ключ
2 спальн. · 1 санузл. · 1 этаж
от 9 323 300 ₽
→
Проекты домов из газобетона Вилла 2 S под ключ
4 спальн. · 2 санузл. · 2 этаж
от 9 307 800 ₽
→
Дома из газобетона Бунгало L под ключ
3 спальн. · 2 санузл. · 1 этаж
от 9 947 100 ₽
→
Качественные дома из керамических блоков Бунгало L под ключ
3 спальн. · 2 санузл. · 1 этаж
от 10 830 300 ₽
→
Проект каркасного дома с мансардой Бавария S под ключ от компании БАКО
4 спальн. · 2 санузл. · 2 этаж
от 6 225 600 ₽
→
На сайт застройщика