Перейти к контенту
Подбор и сравнение проектов домов от застройщиков Московской области
Подборщик домов
Калькулятор сметы
Калькулятор площади
Форум
Блог
Главная
›
Каталог проектов
›
Проект V-166-1K
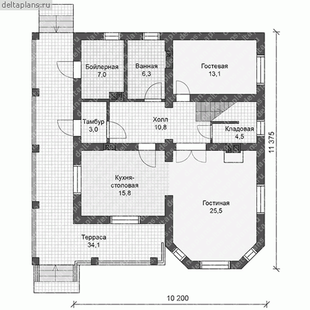
Проект V-166-1K
Застройщик: Юникс-Строй
166.47 м²
1 / 3
🏠
166.47 м²
📐
2 этаж
🧱
Кирпич
Похожие проекты
Похожие по цене
Похожие по площади
Проект одноэтажного дома "Глория" из бруса
2 спальн. · 2 этаж
от 13 652 297 ₽
→
Проект R-195-1P
2 этаж
от 13 647 900 ₽
→
Проект U-195-2P
2 этаж
от 13 646 500 ₽
→
Проект V-166-1P
2 этаж
от 11 652 900 ₽
→
Проект Y-196-1D
2 этаж
от 24 972 000 ₽
→
Аврора 2
4 спальн. · 3 санузл. · 2 этаж
от 7 639 800 ₽
→
На сайт застройщика