Перейти к контенту
Подбор и сравнение проектов домов от застройщиков Московской области
Подборщик домов
Калькулятор сметы
Калькулятор площади
Форум
Блог
Главная
›
Каталог проектов
›
Проект V-178-1K
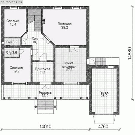
Проект V-178-1K
Застройщик: Юникс-Строй
178.44 м²
1 / 3
🏠
178.44 м²
📐
2 этаж
🧱
Кирпич
Похожие проекты
Похожие по цене
Похожие по площади
Проект одноэтажного каркасного дома "Игл"
3 спальн. · 2 этаж
от 14 630 352 ₽
→
Проект дома D-209-1P
2 этаж
от 14 630 000 ₽
→
Проект W-179-1K
2 этаж
от 14 637 000 ₽
→
Дом из газобетонных блоков С-179 ГБ «Бьерн»
3 спальн. · 2 санузл. · 3 этаж
от 8 440 000 ₽
→
Дом из керамических блоков С-179 КЕ «Бьерн»
3 спальн. · 2 санузл. · 3 этаж
от 8 440 000 ₽
→
Кирпичный дом С-179 К «Бьерн»
3 спальн. · 2 санузл. · 3 этаж
от 9 032 000 ₽
→
На сайт застройщика