Перейти к контенту
Подбор и сравнение проектов домов от застройщиков Московской области
Подборщик домов
Калькулятор сметы
Калькулятор площади
Форум
Блог
Главная
›
Каталог проектов
›
Проект V-187-1P
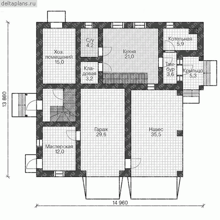
Проект V-187-1P
Застройщик: Юникс-Строй
187.0 м²
1 / 3
🏠
187.0 м²
📐
2 этаж
🧱
Пеноблок
Похожие проекты
Похожие по цене
Похожие по площади
Одноэтажный дом «Озерск» | ЭкоТех
3 спальн. · 2 санузл. · 1 этаж
от 13 092 000 ₽
→
Проект W-160-1K
2 этаж
от 13 087 200 ₽
→
Проект дома U-175-1P
2 этаж
от 13 102 600 ₽
→
Двухэтажный дом 4 спальни №355
2 этаж
от 9 563 900 ₽
→
Двухэтажный дом 4 спальни №355
2 этаж
от 9 563 900 ₽
→
Дом по проекту «ЗС 235-24» - Золотое Сечение
4 спальн. · 3 санузл.
от 23 375 000 ₽
→
На сайт застройщика