Перейти к контенту
Подбор и сравнение проектов домов от застройщиков Московской области
Подборщик домов
Калькулятор сметы
Калькулятор площади
Форум
Блог
Главная
›
Каталог проектов
›
Проект V-203-1K
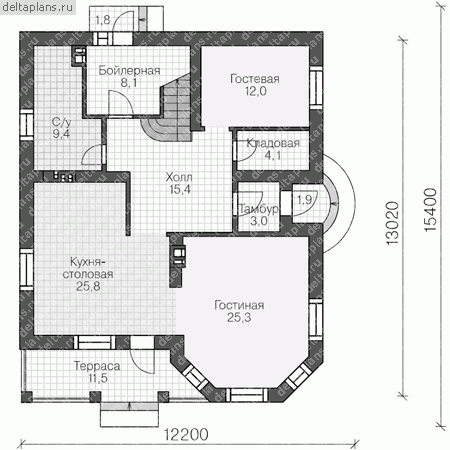
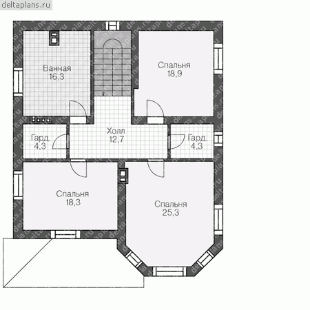
Проект V-203-1K
Застройщик: Юникс-Строй
203.15 м²
1 / 3
🏠
203.15 м²
🚿
2 санузл.
📐
2 этаж
🧱
Кирпич
Похожие проекты
Похожие по цене
Похожие по площади
Проект A-237-1P
2 этаж
от 16 653 000 ₽
→
Каркасный дом «Кириши
от 16 650 000 ₽
→
Проект U-205-1K
2 этаж
от 16 675 520 ₽
→
Проект U-203-1P
2 этаж
от 14 226 800 ₽
→
Каркасный дом “Авангард”
5 спальн. · 2 этаж
от 4 425 400 ₽
→
Проект К-217 11 на 9, площадью 203 за 6 743 250 руб
5 спальн. · 2 этаж
от 6 743 250 ₽
→
На сайт застройщика