Перейти к контенту
Подбор и сравнение проектов домов от застройщиков Московской области
Подборщик домов
Калькулятор сметы
Калькулятор площади
Форум
Блог
Главная
›
Каталог проектов
›
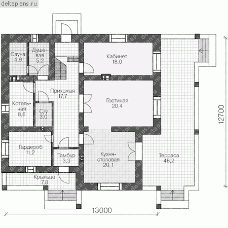
Проект V-221-1K
Проект V-221-1K
Застройщик: Юникс-Строй
220.3 м²
1 / 3
🏠
220.3 м²
📐
2 этаж
🧱
Кирпич
Похожие проекты
Похожие по цене
Похожие по площади
Проект B-220-1K
2 этаж
от 18 062 140 ₽
→
Проект A-349-1K
2 этаж
от 18 058 860 ₽
→
Проект N-257-1P
2 этаж
от 18 053 000 ₽
→
Проект дома «Криш»
4 спальн. · 2 этаж
от 13 003 000 ₽
→
Проект дома «Сноуи»
4 спальн. · 2 этаж
от 13 003 000 ₽
→
Проект B-220-1K
2 этаж
от 18 062 140 ₽
→
На сайт застройщика