Перейти к контенту
Подбор и сравнение проектов домов от застройщиков Московской области
Подборщик домов
Калькулятор сметы
Калькулятор площади
Форум
Блог
Главная
›
Каталог проектов
›
Проект V-226-1P
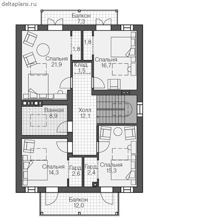
Проект V-226-1P
Застройщик: Юникс-Строй
226.13 м²
1 / 4
🏠
226.13 м²
📐
3 этаж
🧱
Пеноблок
Похожие проекты
Похожие по цене
Похожие по площади
Проект одноэтажного дома "Весенняя сказка" из бруса
4 спальн. · 2 этаж
от 15 826 315 ₽
→
Проект R-226-1P
2 этаж
от 15 836 100 ₽
→
Проект одноэтажного дома "Аль Таяр" из бруса
5 спальн. · 2 этаж
от 15 840 716 ₽
→
Проект R-226-1P
2 этаж
от 15 836 100 ₽
→
Проект К-165 12 на 9, площадью 226 за 7 479 000 руб
4 спальн. · 2 этаж
от 7 479 000 ₽
→
Проект К-165 12 на 9, площадью 226 за 7 479 000 руб
4 спальн. · 2 этаж
от 6 328 000 ₽
→
На сайт застройщика