Перейти к контенту
Подбор и сравнение проектов домов от застройщиков Московской области
Подборщик домов
Калькулятор сметы
Калькулятор площади
Форум
Блог
Главная
›
Каталог проектов
›
Проект V-264-2P
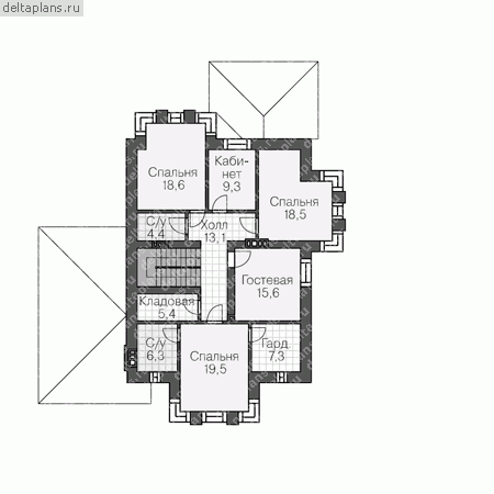
Проект V-264-2P
Застройщик: Юникс-Строй
264.72 м²
1 / 3
🏠
264.72 м²
📐
2 этаж
🧱
Пеноблок
Похожие проекты
Похожие по цене
Похожие по площади
Проект «Akron»
4 спальн. · 3 санузл. · 2 этаж
от 18 550 000 ₽
→
Проект дома A-109-1P
2 этаж
от 18 550 000 ₽
→
Проект дома A-265-1P
2 этаж
от 18 550 000 ₽
→
Проект каркасного дома КП-3838
1 этаж
от 15 500 000 ₽
→
Проект дома «Монж»
3 спальн. · 1 этаж
от 22 250 000 ₽
→
Проект одноэтажного коттеджа "Люкс" из газобетона
2 этаж
от 11 765 000 ₽
→
На сайт застройщика