Перейти к контенту
Подбор и сравнение проектов домов от застройщиков Московской области
Подборщик домов
Калькулятор сметы
Калькулятор площади
Форум
Блог
Главная
›
Каталог проектов
›
Проект V-312-1P
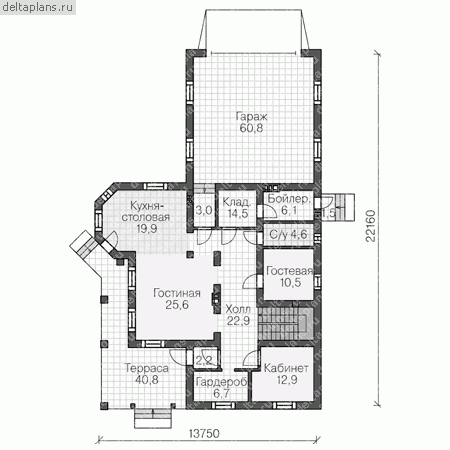
Проект V-312-1P
Застройщик: Юникс-Строй
312.42 м²
1 / 3
🏠
312.42 м²
📐
2 этаж
🧱
Пеноблок
Похожие проекты
Похожие по цене
Похожие по площади
Проект U-266-1K
2 этаж
от 21 861 200 ₽
→
Проект U-312-1P
2 этаж
от 21 883 400 ₽
→
Проект «Allen»
4 спальн. · 3 санузл. · 2 этаж
от 21 850 000 ₽
→
Проект U-312-1P
2 этаж
от 21 883 400 ₽
→
Проект V-312-1K
4 санузл. · 2 этаж
от 25 634 840 ₽
→
Проект W-312-1K
3 этаж
от 25 592 200 ₽
→
На сайт застройщика