Перейти к контенту
Подбор и сравнение проектов домов от застройщиков Московской области
Подборщик домов
Калькулятор сметы
Калькулятор площади
Форум
Блог
Главная
›
Каталог проектов
›
Проект V-350-1K
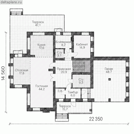
Проект V-350-1K
Застройщик: Юникс-Строй
347.81 м²
1 / 3
🏠
347.81 м²
📐
2 этаж
🧱
Кирпич
Похожие проекты
Похожие по цене
Похожие по площади
Проект одноэтажного каркасного дома "Павлина"
4 спальн. · 2 этаж
от 28 512 561 ₽
→
Проект M-348-1K
3 этаж
от 28 536 000 ₽
→
Проект E-407-1P
2 этаж
от 28 539 000 ₽
→
Резиденция в современном стиле «Асорда»
2 спальн. · 3 санузл. · 2 этаж
от 20 868 000 ₽
→
Проект К-153 13 на 13, площадью 348 за 11 550 750 руб
7 спальн. · 2 этаж
от 11 550 750 ₽
→
Проект К-153 13 на 13, площадью 348 за 11 550 750 руб
7 спальн. · 2 этаж
от 9 744 000 ₽
→
На сайт застройщика