Перейти к контенту
Подбор и сравнение проектов домов от застройщиков Московской области
Подборщик домов
Калькулятор сметы
Калькулятор площади
Форум
Блог
Главная
›
Каталог проектов
›
Проект V-574-1K
Проект V-574-1K
Застройщик: Юникс-Строй
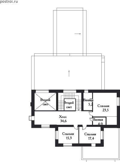
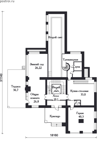
573.7 м²
1 / 4
🏠
573.7 м²
📐
3 этаж
🧱
Кирпич
Похожие проекты
Похожие по цене
Похожие по площади
Проект U-573-1K
3 этаж
от 47 044 220 ₽
→
Дом по проекту «ЗС 649-20» - Золотое Сечение
3 спальн. · 4 санузл.
от 47 000 000 ₽
→
Проект «Сарасота»
5 спальн. · 6 санузл.
от 47 200 000 ₽
→
Проект U-573-1K
3 этаж
от 47 044 220 ₽
→
Проект «Dals»
2 этаж
от 28 600 000 ₽
→
Проект «Dals»
2 этаж
от 28 600 000 ₽
→
На сайт застройщика