Перейти к контенту
Подбор и сравнение проектов домов от застройщиков Московской области
Подборщик домов
Калькулятор сметы
Калькулятор площади
Форум
Блог
Главная
›
Каталог проектов
›
Проект W-242-1K
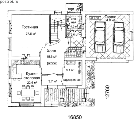
Проект W-242-1K
Застройщик: Юникс-Строй
241.5 м²
1 / 3
🏠
241.5 м²
📐
2 этаж
🧱
Кирпич
Похожие проекты
Похожие по цене
Похожие по площади
Проект E-241-1K
2 этаж
от 19 803 000 ₽
→
Дом в стиле Хай-Тек «Диллон» для узкого участка
3 спальн. · 3 санузл. · 2 этаж
от 19 800 000 ₽
→
Проект двухэтажного коттеджа "Авила" из газобетона
5 спальн. · 2 этаж
от 19 809 000 ₽
→
Дом из клееного бруса «Стокгольм» | ЭкоТех
2 спальн. · 2 санузл. · 2 этаж
от 13 570 000 ₽
→
Проект E-241-1K
2 этаж
от 19 803 000 ₽
→
Проект дома N-253-1P
2 этаж
от 16 907 100 ₽
→
На сайт застройщика