Перейти к контенту
Подбор и сравнение проектов домов от застройщиков Московской области
Подборщик домов
Калькулятор сметы
Калькулятор площади
Форум
Блог
Главная
›
Каталог проектов
›
Проект W-280-1K
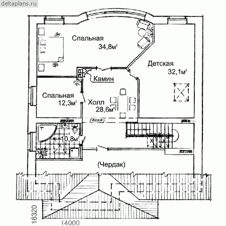
Проект W-280-1K
Застройщик: Юникс-Строй
280.1 м²
1 / 3
🏠
280.1 м²
📐
2 этаж
🧱
Кирпич
Похожие проекты
Похожие по цене
Похожие по площади
Проект U-280-1K
2 этаж
от 22 962 460 ₽
→
Проект A-280-1K
4 санузл. · 2 этаж
от 22 960 000 ₽
→
Проект K-280-1K
3 этаж
от 22 960 000 ₽
→
Проект дома W-289-1P
2 этаж
от 19 602 800 ₽
→
Проект U-280-1K
2 этаж
от 22 962 460 ₽
→
Дом из газобетонных блоков С-281 ГБ «Скарлетт»
4 спальн. · 3 санузл. · 4 этаж
от 12 613 000 ₽
→
На сайт застройщика