Перейти к контенту
Подбор и сравнение проектов домов от застройщиков Московской области
Подборщик домов
Калькулятор сметы
Калькулятор площади
Форум
Блог
Главная
›
Каталог проектов
›
Проект W-336-1K
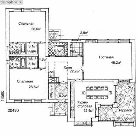
Проект W-336-1K
Застройщик: Юникс-Строй
336.0 м²
1 / 3
🏠
336.0 м²
📐
2 этаж
🧱
Кирпич
Похожие проекты
Похожие по цене
Похожие по площади
Проект J-336-1K
3 этаж
от 27 560 200 ₽
→
Проект дома H-393-1P
2 этаж
от 27 524 000 ₽
→
Дом с комбинированным фасадом «Гессен»
4 спальн. · 6 санузл. · 2 этаж
от 27 504 000 ₽
→
Проект К-238 15 на 11, площадью 336 за 11 175 750 руб
5 спальн. · 2 этаж
от 11 175 750 ₽
→
Проект К-238 15 на 11, площадью 336 за 11 175 750 руб
5 спальн. · 2 этаж
от 9 408 000 ₽
→
Проект J-336-1K
3 этаж
от 27 560 200 ₽
→
На сайт застройщика