Перейти к контенту
Подбор и сравнение проектов домов от застройщиков Московской области
Подборщик домов
Калькулятор сметы
Калькулятор площади
Форум
Блог
Главная
›
Каталог проектов
›
Проект W-346-1K
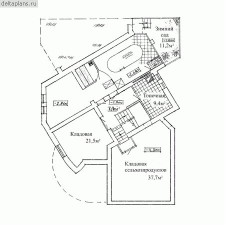
Проект W-346-1K
Застройщик: Юникс-Строй
346.1 м²
1 / 4
🏠
346.1 м²
📐
3 этаж
🧱
Кирпич
Похожие проекты
Похожие по цене
Похожие по площади
Дом по проекту «ЗС 905-21» - Золотое Сечение
3 спальн. · 2 санузл.
от 28 375 000 ₽
→
Проект U-303-1K
2 этаж
от 28 360 520 ₽
→
Проект D-185-1D
2 этаж
от 28 350 000 ₽
→
Проект U-303-1K
2 этаж
от 28 360 520 ₽
→
Проект дома V-345-1P
2 этаж
от 24 178 000 ₽
→
Проект U-332-1P
2 этаж
от 24 283 000 ₽
→
На сайт застройщика