Перейти к контенту
Подбор и сравнение проектов домов от застройщиков Московской области
Подборщик домов
Калькулятор сметы
Калькулятор площади
Форум
Блог
Главная
›
Каталог проектов
›
Проект W-367-1K
Проект W-367-1K
Застройщик: Юникс-Строй
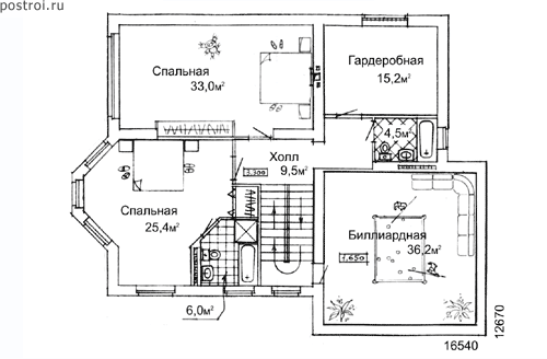
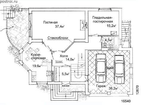
366.5 м²
1 / 4
🏠
366.5 м²
📐
3 этаж
🧱
Кирпич
Похожие проекты
Похожие по цене
Похожие по площади
Проект M-366-1K
2 этаж
от 30 070 220 ₽
→
Дом по проекту «ЗС 14-25» - Золотое Сечение
3 спальн. · 3 санузл.
от 30 000 000 ₽
→
Проект D-200-1D
2 этаж
от 30 000 000 ₽
→
Проект одноэтажного коттеджа "Тульский пряник-2" из газобетона
8 спальн. · 2 этаж
от 14 340 000 ₽
→
Проект M-366-1K
2 этаж
от 30 070 220 ₽
→
Проект U-366-1P
3 этаж
от 25 599 700 ₽
→
На сайт застройщика