Перейти к контенту
Подбор и сравнение проектов домов от застройщиков Московской области
Подборщик домов
Калькулятор сметы
Калькулятор площади
Форум
Блог
Главная
›
Каталог проектов
›
Проект X-144-1P
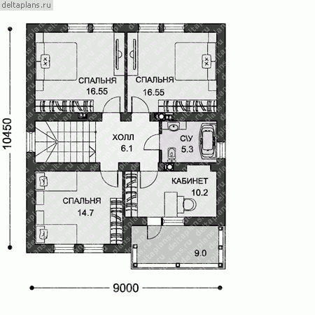
Проект X-144-1P
Застройщик: Юникс-Строй
144.2 м²
1 / 3
🏠
144.2 м²
📐
2 этаж
🧱
Пеноблок
Похожие проекты
Похожие по цене
Похожие по площади
Проект D-144-1P
2 этаж
от 10 094 000 ₽
→
Каркасный дом «Колпино
от 10 095 000 ₽
→
Проект дома H-144-1P
2 этаж
от 10 096 800 ₽
→
Проект D-144-1P
2 этаж
от 10 094 000 ₽
→
Проект дома «Ясень» | ЭкоТех
3 спальн. · 2 санузл. · 1 этаж
от 7 049 755 ₽
→
Проект дома H-144-1P
2 этаж
от 10 096 800 ₽
→
На сайт застройщика