Перейти к контенту
Подбор и сравнение проектов домов от застройщиков Московской области
Подборщик домов
Калькулятор сметы
Калькулятор площади
Форум
Блог
Главная
›
Каталог проектов
›
Проект X-150-2P
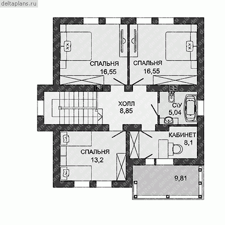
Проект X-150-2P
Застройщик: Юникс-Строй
146.4 м²
1 / 3
🏠
146.4 м²
📐
2 этаж
🧱
Пеноблок
Похожие проекты
Похожие по цене
Похожие по площади
Проект одноэтажного коттеджа "Робинзон Крузо" из газобетона
4 спальн. · 2 этаж
от 10 249 000 ₽
→
Проект дома из газоблоков 8х14 ГББ-175: цена 6837000 руб.
4 спальн. · 3 санузл. · 2 этаж
от 10 249 000 ₽
→
Кирпичный дом С-232 К «Леон»
4 спальн. · 2 санузл. · 2 этаж
от 10 249 000 ₽
→
Проект дома «Градский»
4 спальн. · 1 этаж
от 12 322 000 ₽
→
Проект дома «Пирс»
3 спальн. · 1 этаж
от 12 319 000 ₽
→
Проект одноэтажного дома "Осенний вальс" из бруса
2 спальн. · 2 этаж
от 10 784 487 ₽
→
На сайт застройщика