Перейти к контенту
Подбор и сравнение проектов домов от застройщиков Московской области
Подборщик домов
Калькулятор сметы
Калькулятор площади
Форум
Блог
Главная
›
Каталог проектов
›
Проект X-216-1P
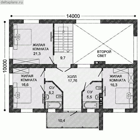
Проект X-216-1P
Застройщик: Юникс-Строй
216.35 м²
1 / 3
🏠
216.35 м²
📐
2 этаж
🧱
Пеноблок
Похожие проекты
Похожие по цене
Похожие по площади
Проект дома W-237-1P
2 этаж
от 15 151 500 ₽
→
Проект I-216-1P
2 этаж
от 15 155 000 ₽
→
Проект дома G-216-1P
2 этаж
от 15 134 000 ₽
→
Проект одноэтажного дома "Белые ночи" из бруса
4 спальн. · 2 этаж
от 15 581 504 ₽
→
Проект дома W-237-1P
2 этаж
от 15 151 500 ₽
→
Проект U-218-1K
2 этаж
от 17 750 540 ₽
→
На сайт застройщика