Перейти к контенту
Подбор и сравнение проектов домов от застройщиков Московской области
Подборщик домов
Калькулятор сметы
Калькулятор площади
Форум
Блог
Главная
›
Каталог проектов
›
Проект X-241-1P
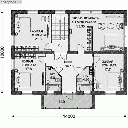
Проект X-241-1P
Застройщик: Юникс-Строй
241.43 м²
1 / 3
🏠
241.43 м²
📐
2 этаж
🧱
Пеноблок
Похожие проекты
Похожие по цене
Похожие по площади
Проект T-244-1P
2 этаж
от 16 893 800 ₽
→
Проект дома N-253-1P
2 этаж
от 16 907 100 ₽
→
Проект M-206-1K
3 этаж
от 16 908 400 ₽
→
Проект двухэтажного коттеджа "Памир" из газобетона
4 спальн. · 2 этаж
от 11 180 000 ₽
→
Проект D-241-1D
2 этаж
от 36 210 000 ₽
→
Дом из клееного бруса «Стокгольм» | ЭкоТех
2 спальн. · 2 санузл. · 2 этаж
от 13 570 000 ₽
→
На сайт застройщика