Перейти к контенту
Подбор и сравнение проектов домов от застройщиков Московской области
Подборщик домов
Калькулятор сметы
Калькулятор площади
Форум
Блог
Главная
›
Каталог проектов
›
Проект Y-167-1D
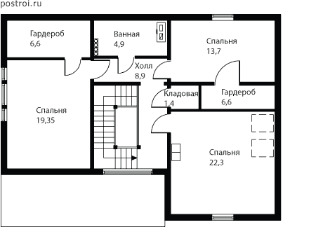
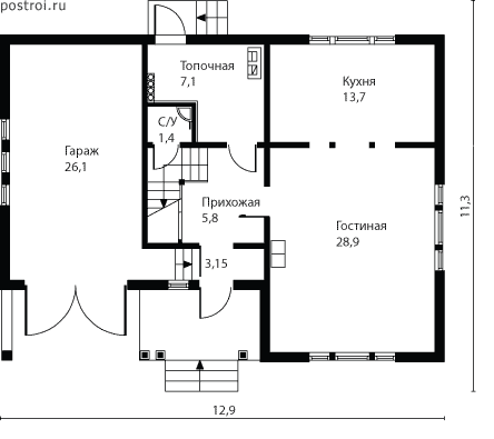
Проект Y-167-1D
Застройщик: Юникс-Строй
167.2 м²
1 / 3
🏠
167.2 м²
📐
2 этаж
🧱
Дерево
Похожие проекты
Похожие по цене
Похожие по площади
Проект B-305-1K
3 этаж
от 25 075 600 ₽
→
Проект V-305-1K
3 этаж
от 25 069 860 ₽
→
Вилла с бассейном «Камлау»
3 спальн. · 4 санузл. · 2 этаж
от 25 092 000 ₽
→
Проект X-183-1P
2 этаж
от 11 704 000 ₽
→
Проект X-183-2P
2 этаж
от 11 704 000 ₽
→
Проект двухэтажного дома "Олаф" из бруса
4 спальн. · 2 этаж
от 12 560 568 ₽
→
На сайт застройщика