Перейти к контенту
Подбор и сравнение проектов домов от застройщиков Московской области
Подборщик домов
Калькулятор сметы
Калькулятор площади
Форум
Блог
Главная
›
Каталог проектов
›
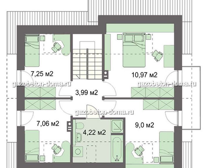
Дом из газобетона Проект ГБ-3
Дом из газобетона Проект ГБ-3
Застройщик: Газобетон Строй
150.0 м²
1 / 3
🏠
150.0 м²
🛏
3 спален
🚿
2 санузл.
🧱
Газобетон
Похожие проекты
Похожие по цене
Похожие по площади
Дом из газобетона Проект ГБ-218
3 спальн. · 2 санузл. · 2 этаж
от 6 199 000 ₽
→
Проект каркасного дома КП-89
1 этаж
от 6 200 000 ₽
→
Проект дома «Шемблз»
2 спальн. · 2 этаж
от 6 197 800 ₽
→
Проект одноэтажного дома "Опалево-М3" из бруса
5 спальн. · 2 этаж
от 10 522 580 ₽
→
Проект одноэтажного дома "Радуга" из бруса
3 спальн. · 2 этаж
от 10 726 805 ₽
→
Проект одноэтажного дома "Шале" из бруса
2 этаж
от 9 639 261 ₽
→
На сайт застройщика