Перейти к контенту
Подбор и сравнение проектов домов от застройщиков Московской области
Подборщик домов
Калькулятор сметы
Калькулятор площади
Форум
Блог
Главная
›
Каталог проектов
›
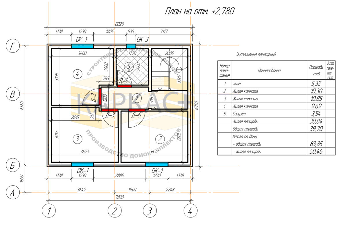
Проект каркасного дома КП-89
Проект каркасного дома КП-89
Застройщик: КАРКАС+
89.65 м²
1 / 3
🏠
89.65 м²
📐
1 этаж
🧱
Каркас
Похожие проекты
Похожие по цене
Похожие по площади
Дом из газобетона Проект ГБ-218
3 спальн. · 2 санузл. · 2 этаж
от 6 199 000 ₽
→
Дом из газобетона Проект ГБ-3
3 спальн. · 2 санузл.
от 6 199 000 ₽
→
Проект дома «Шемблз»
2 спальн. · 2 этаж
от 6 197 800 ₽
→
Проект M-089-1P
2 этаж
от 6 272 000 ₽
→
Проект дома «Мерфи»
3 спальн. · 1 этаж
от 9 062 400 ₽
→
Проект G-089-1P
2 этаж
от 6 264 300 ₽
→
На сайт застройщика