Перейти к контенту
Подбор и сравнение проектов домов от застройщиков Московской области
Подборщик домов
Калькулятор сметы
Калькулятор площади
Форум
Блог
Главная
›
Каталог проектов
›
Дом по проекту «ЗС 19-17» - Золотое Сечение
Дом по проекту «ЗС 19-17» - Золотое Сечение
Застройщик: Золотое Сечение
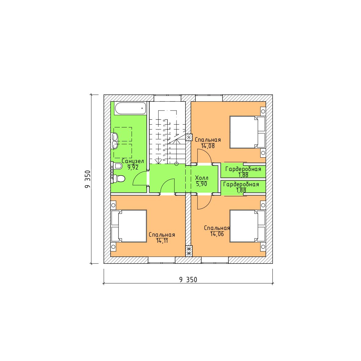
153.0 м²
1 / 3
🏠
153.0 м²
🛏
3 спален
🚿
2 санузл.
🧱
Газобетонный блок/Керамический блок/Кирпич
Похожие проекты
Похожие по цене
Похожие по площади
Дом по проекту «ЗС 400-19» - Золотое Сечение
3 спальн. · 2 санузл.
от 19 125 000 ₽
→
Проект L-233-1K
2 этаж
от 19 114 200 ₽
→
Проект U-233-1K
2 этаж
от 19 112 560 ₽
→
Проект двухэтажного дома "Уголок-М2" из бруса
4 спальн. · 2 этаж
от 13 040 589 ₽
→
Проект двухэтажного дома "Уголок-М3" из бруса
4 спальн. · 2 этаж
от 11 303 679 ₽
→
Двухэтажный дом 5 спален №353
2 этаж
от 10 207 555 ₽
→
На сайт застройщика