Перейти к контенту
Подбор и сравнение проектов домов от застройщиков Московской области
Подборщик домов
Калькулятор сметы
Калькулятор площади
Форум
Блог
Главная
›
Каталог проектов
›
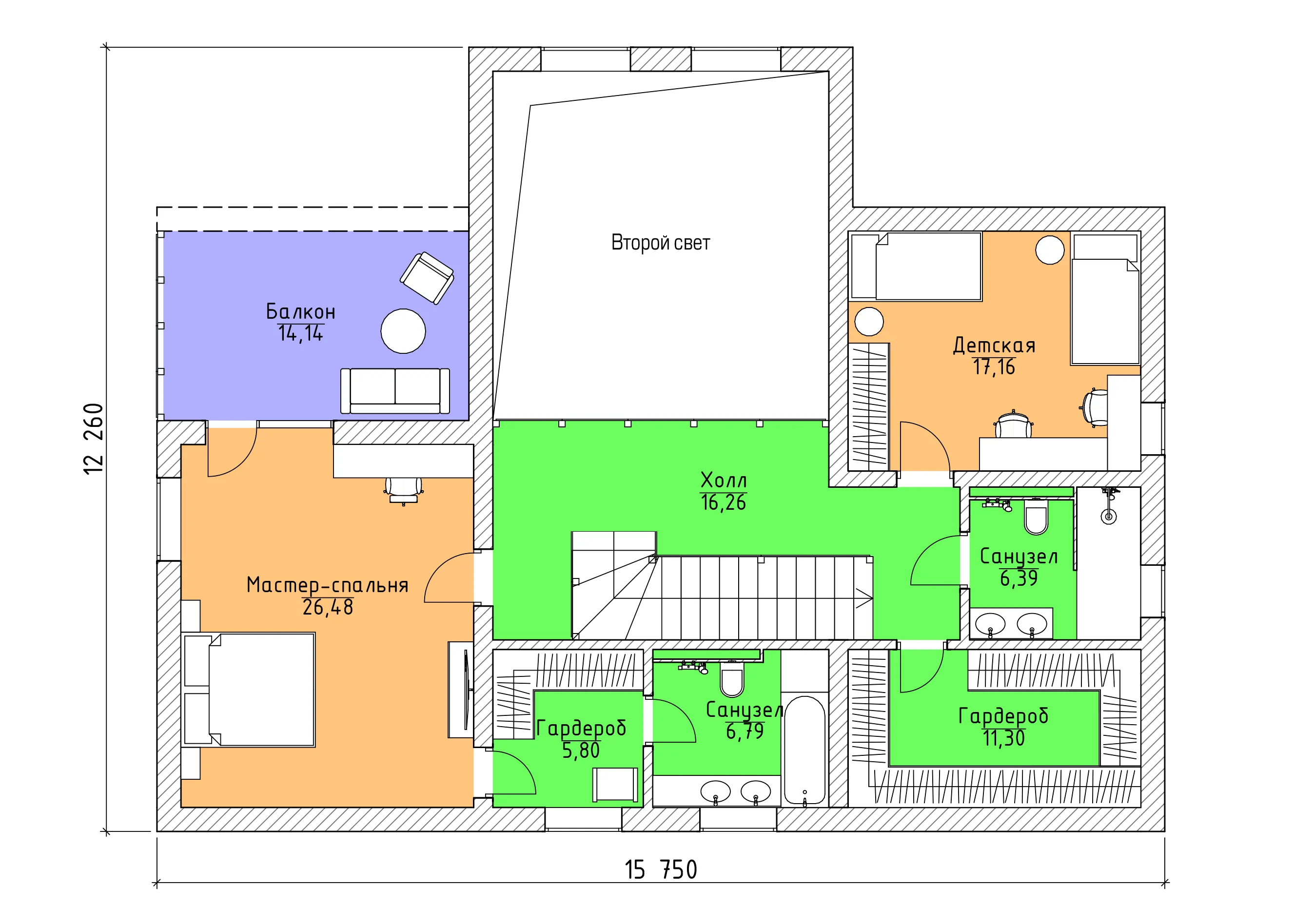
Дом по проекту «ЗС 20-16» - Золотое Сечение
Дом по проекту «ЗС 20-16» - Золотое Сечение
Застройщик: Золотое Сечение
357.0 м²
1 / 3
🏠
357.0 м²
🛏
3 спален
🚿
2 санузл.
🧱
Газобетонный блок/керамический блок/Кирпич
Похожие проекты
Похожие по цене
Похожие по площади
Большая резиденция в стиле Хай-Тек «Гослар»
3 спальн. · 4 санузл. · 2 этаж
от 44 712 000 ₽
→
Двухэтажный коттедж в стиле Райта «Редмонд»
5 спальн. · 7 санузл. · 2 этаж
от 44 796 000 ₽
→
Проект M-542-1K
3 этаж
от 44 444 000 ₽
→
Проект E-357-1K
3 этаж
от 29 274 000 ₽
→
Проект дома C-298-1P
3 этаж
от 24 996 300 ₽
→
Проект J-357-1K
3 этаж
от 29 257 600 ₽
→
На сайт застройщика