Перейти к контенту
Подбор и сравнение проектов домов от застройщиков Московской области
Подборщик домов
Калькулятор сметы
Калькулятор площади
Форум
Блог
Главная
›
Каталог проектов
›
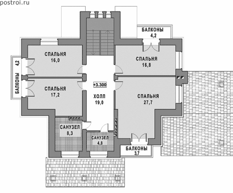
Проект E-357-1K
Проект E-357-1K
Застройщик: Юникс-Строй
357.0 м²
1 / 4
🏠
357.0 м²
📐
3 этаж
🧱
Кирпич
Похожие проекты
Похожие по цене
Похожие по площади
Проект дома K-418-1P
3 этаж
от 29 281 000 ₽
→
Двухэтажный особняк проект Райт
4 спальн. · 4 санузл. · 2 этаж
от 29 287 500 ₽
→
Проект J-357-1K
3 этаж
от 29 257 600 ₽
→
Дом по проекту «ЗС 20-16» - Золотое Сечение
3 спальн. · 2 санузл.
от 44 625 000 ₽
→
Проект дома C-298-1P
3 этаж
от 24 996 300 ₽
→
Проект J-357-1K
3 этаж
от 29 257 600 ₽
→
На сайт застройщика