Перейти к контенту
Подбор и сравнение проектов домов от застройщиков Московской области
Подборщик домов
Калькулятор сметы
Калькулятор площади
Форум
Блог
Главная
›
Каталог проектов
›
Дом по проекту «ЗС 25-16» - Золотое Сечение
Дом по проекту «ЗС 25-16» - Золотое Сечение
Застройщик: Золотое Сечение
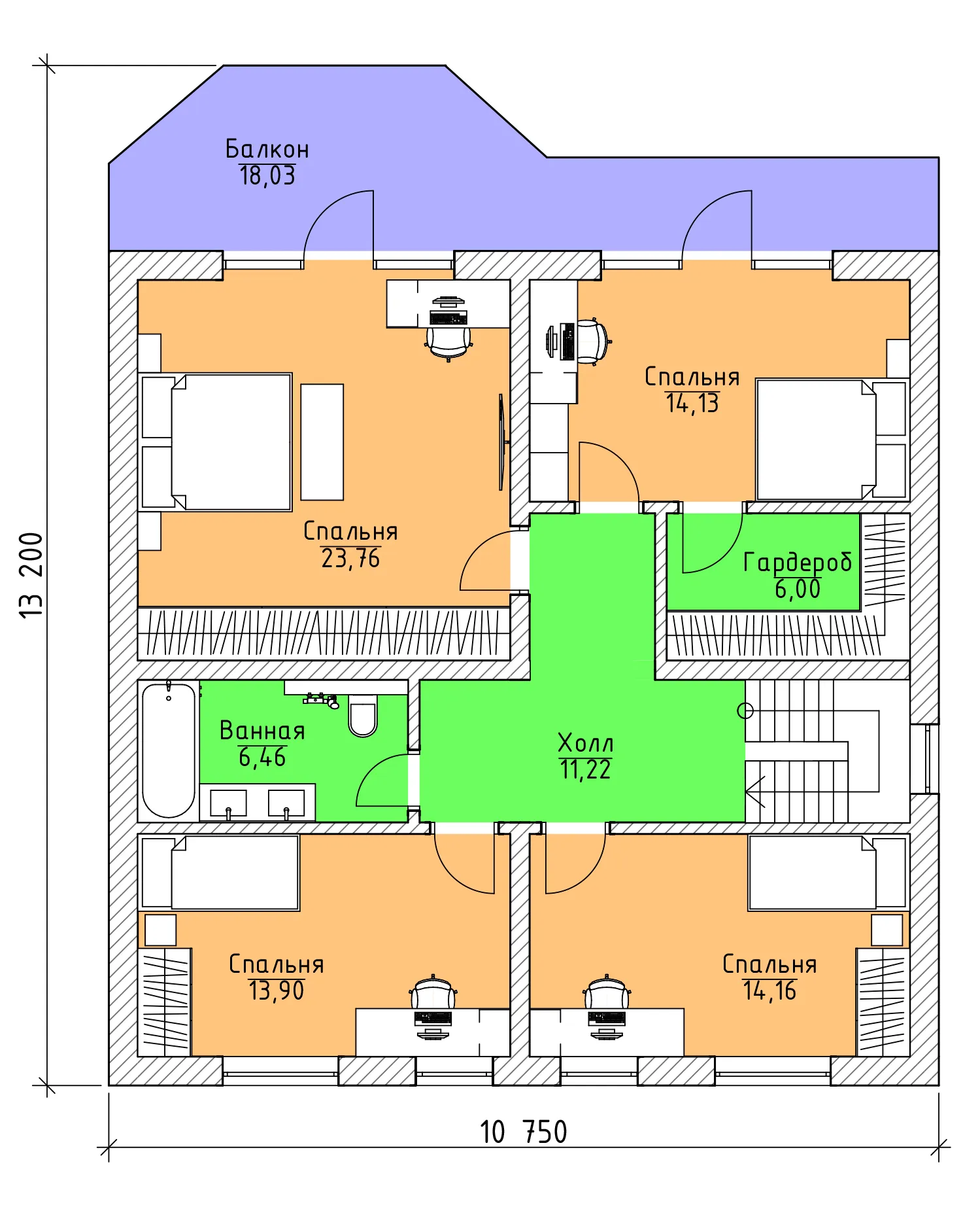
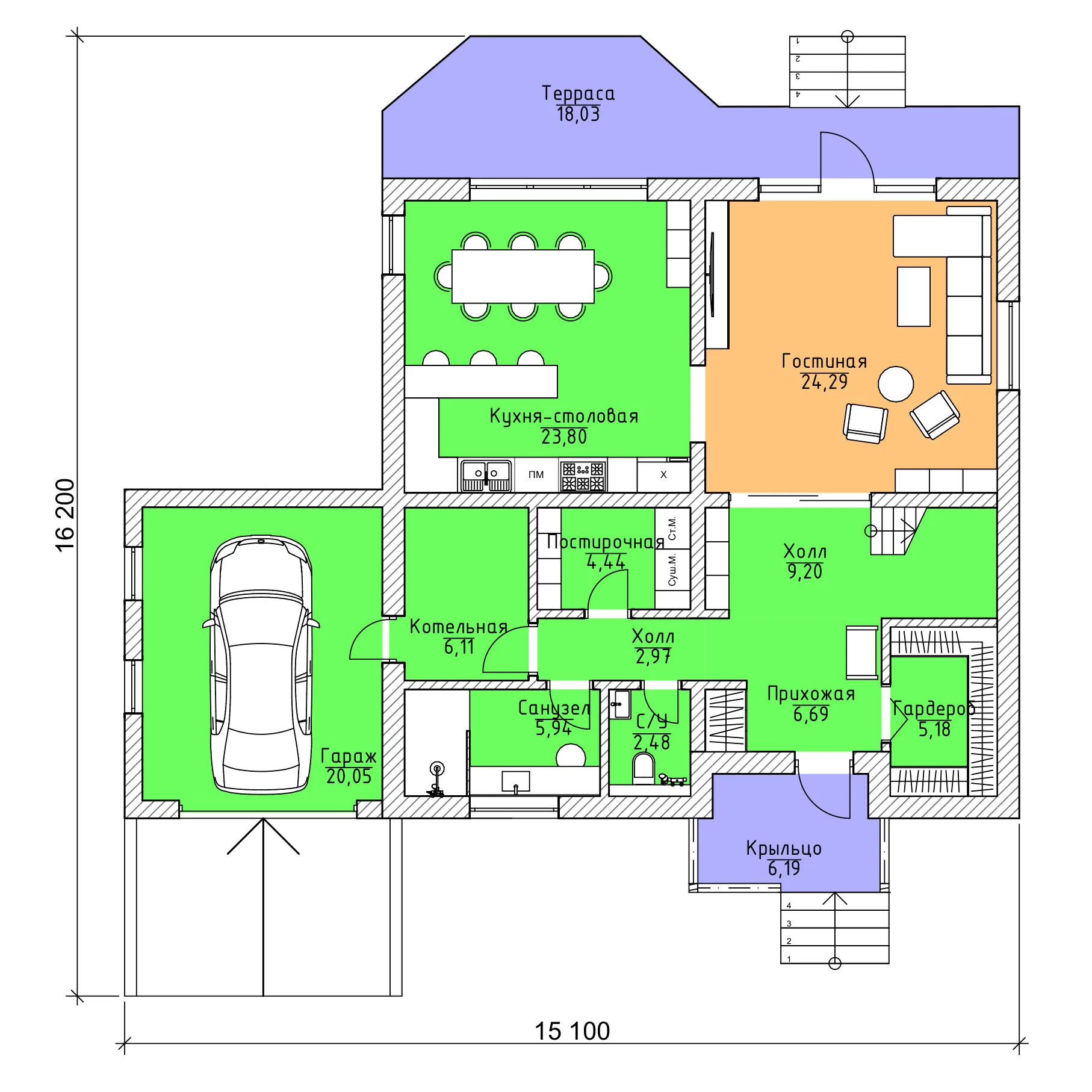
243.0 м²
1 / 3
🏠
243.0 м²
🛏
4 спален
🚿
3 санузл.
🧱
Газобетонный блок/Керамический блок/Кирпич
Похожие проекты
Похожие по цене
Похожие по площади
Проект J-371-1K
2 этаж
от 30 389 200 ₽
→
Проект U-370-1K
2 этаж
от 30 358 860 ₽
→
Дом Руза из газобетона: заказать в Москве по низкой цене
6 санузл. · 2 этаж
от 30 400 000 ₽
→
Дом Лазаревское из газобетона: заказать в Москве по низкой цене
3 спальн. · 2 санузл. · 2 этаж
от 12 680 000 ₽
→
Дом Лазаревское из кирпича: заказать в Москве по низкой цене
3 спальн. · 2 санузл. · 2 этаж
от 12 680 000 ₽
→
Проект К-171 11 на 22, площадью 243 за 9 646 500 руб
3 спальн. · 1 этаж
от 9 646 500 ₽
→
На сайт застройщика