Перейти к контенту
Подбор и сравнение проектов домов от застройщиков Московской области
Подборщик домов
Калькулятор сметы
Калькулятор площади
Форум
Блог
Главная
›
Каталог проектов
›
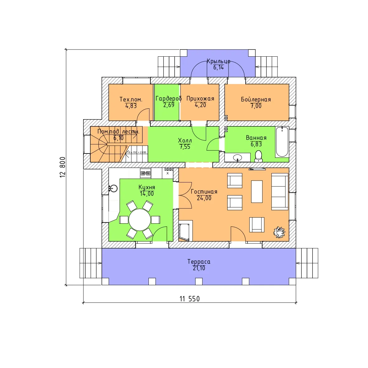
Дом по проекту «ЗС 318-18» - Золотое Сечение
Дом по проекту «ЗС 318-18» - Золотое Сечение
Застройщик: Золотое Сечение
197.0 м²
1 / 3
🏠
197.0 м²
🛏
3 спален
🚿
2 санузл.
🧱
Газобетонный блок/керамический блок/кирпич
Похожие проекты
Похожие по цене
Похожие по площади
Дом по проекту «ЗС 25-22» - Золотое Сечение
4 спальн. · 2 санузл.
от 24 625 000 ₽
→
Проект N-300-1K
2 этаж
от 24 624 600 ₽
→
Проект двухэтажного коттеджа "Министерский" из газобетона
6 спальн. · 2 этаж
от 24 632 000 ₽
→
Дом по проекту «ЗС 25-22» - Золотое Сечение
4 спальн. · 2 санузл.
от 24 625 000 ₽
→
Проект M-197-1K
2 этаж
от 16 154 000 ₽
→
Проект U-197-1K
2 этаж
от 16 149 900 ₽
→
На сайт застройщика