Перейти к контенту
Подбор и сравнение проектов домов от застройщиков Московской области
Подборщик домов
Калькулятор сметы
Калькулятор площади
Форум
Блог
Главная
›
Каталог проектов
›
Проект M-197-1K
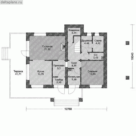
Проект M-197-1K
Застройщик: Юникс-Строй
197.0 м²
1 / 3
🏠
197.0 м²
📐
2 этаж
🧱
Кирпич
Похожие проекты
Похожие по цене
Похожие по площади
Проект U-197-1K
2 этаж
от 16 149 900 ₽
→
Проект дома из керамоблоков 16х18 ТКБ-213: цена 11878000 руб.
4 спальн. · 3 санузл. · 1 этаж
от 16 169 000 ₽
→
Проект одноэтажного коттеджа "Дюар" из газобетона
3 спальн. · 1 этаж
от 16 170 000 ₽
→
Дом по проекту «ЗС 25-22» - Золотое Сечение
4 спальн. · 2 санузл.
от 24 625 000 ₽
→
Дом по проекту «ЗС 318-18» - Золотое Сечение
3 спальн. · 2 санузл.
от 24 625 000 ₽
→
Проект U-197-1K
2 этаж
от 16 149 900 ₽
→
На сайт застройщика