Перейти к контенту
Подбор и сравнение проектов домов от застройщиков Московской области
Подборщик домов
Калькулятор сметы
Калькулятор площади
Форум
Блог
Главная
›
Каталог проектов
›
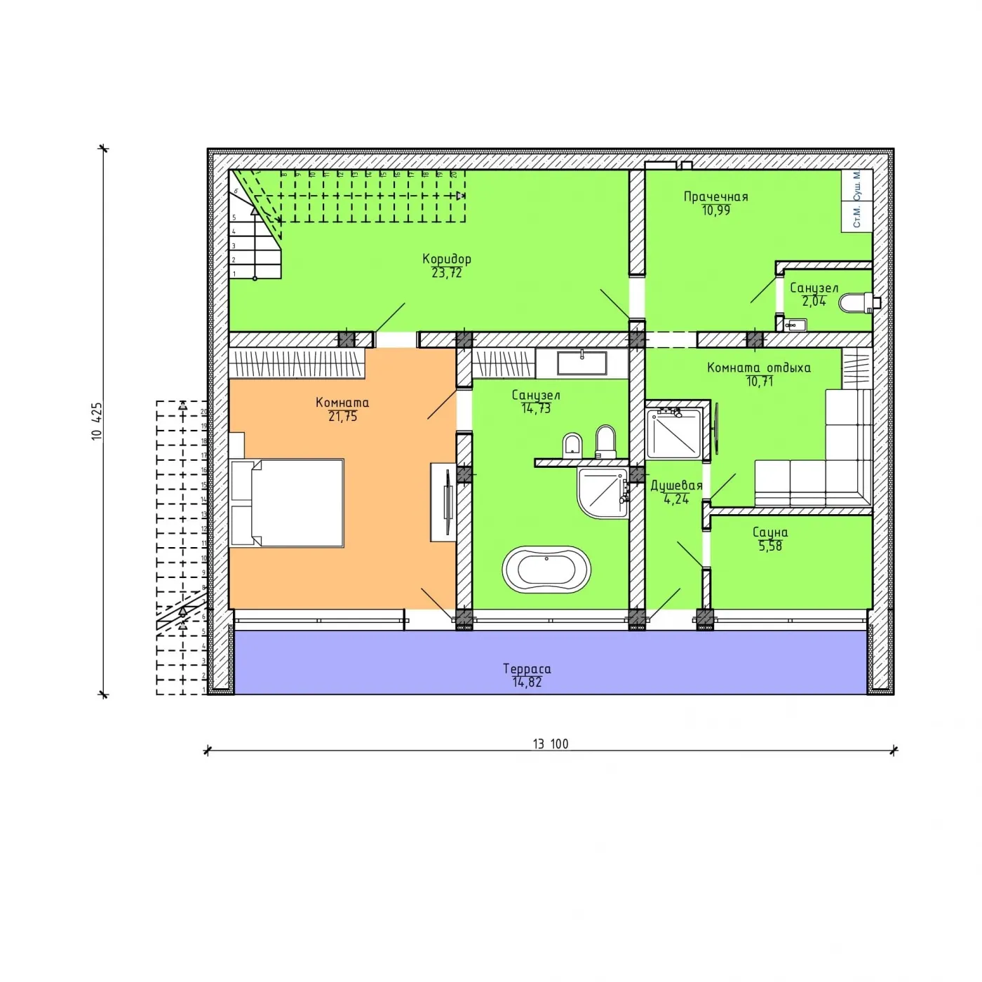
Дом по проекту «ЗС 649-20» - Золотое Сечение
Дом по проекту «ЗС 649-20» - Золотое Сечение
Застройщик: Золотое Сечение
376.0 м²
1 / 3
🏠
376.0 м²
🛏
3 спален
🚿
4 санузл.
🧱
Газобетонный блок/керамический блок/кирпич
Похожие проекты
Похожие по цене
Похожие по площади
Проект V-574-1K
3 этаж
от 47 043 400 ₽
→
Проект U-573-1K
3 этаж
от 47 044 220 ₽
→
Проект «Сарасота»
5 спальн. · 6 санузл.
от 47 200 000 ₽
→
Проект U-376-1K
3 этаж
от 30 836 920 ₽
→
Двухэтажный дом «Брайсон» с бассейном на улице
3 спальн. · 3 санузл. · 2 этаж
от 22 542 000 ₽
→
Проект дома H-375-1P
3 этаж
от 26 275 900 ₽
→
На сайт застройщика