Перейти к контенту
Подбор и сравнение проектов домов от застройщиков Московской области
Подборщик домов
Калькулятор сметы
Калькулятор площади
Форум
Блог
Главная
›
Каталог проектов
›
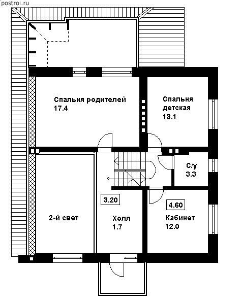
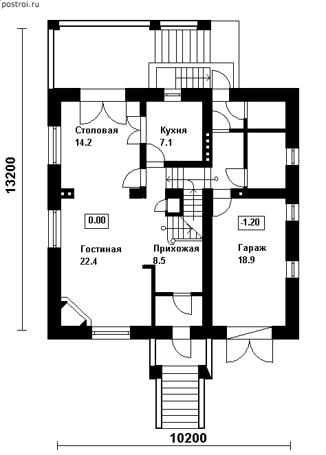
Проект N-239-1K
Проект N-239-1K
Застройщик: Юникс-Строй
238.5 м²
1 / 5
🏠
238.5 м²
📐
3 этаж
🧱
Кирпич
Похожие проекты
Похожие по цене
Похожие по площади
Дом в стиле Райта «Хиленд» с комбинированным фасадом
3 спальн. · 3 санузл. · 2 этаж
от 19 560 000 ₽
→
Проект U-280-1P
2 этаж
от 19 565 000 ₽
→
Проект двухэтажного дома "Акварис" из бруса
5 спальн. · 2 этаж
от 19 566 484 ₽
→
Проект дома U-241-1P
2 этаж
от 16 693 600 ₽
→
Проект одноэтажного коттеджа "Корсика КД" из газобетона
4 спальн. · 2 этаж
от 10 603 000 ₽
→
Проект T-239-1K
2 этаж
от 19 573 400 ₽
→
На сайт застройщика