Перейти к контенту
Подбор и сравнение проектов домов от застройщиков Московской области
Подборщик домов
Калькулятор сметы
Калькулятор площади
Форум
Блог
Главная
›
Каталог проектов
›
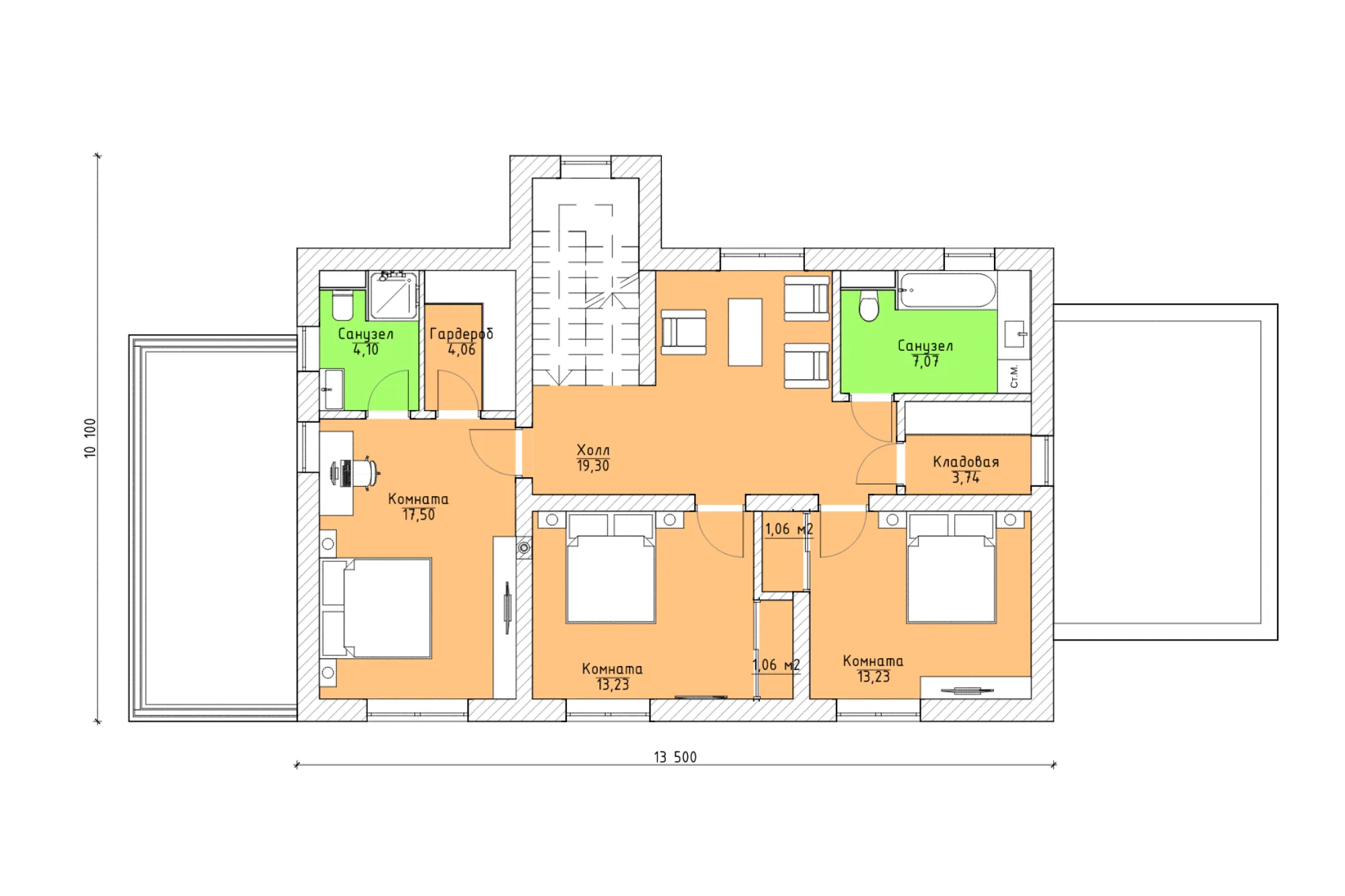
Дом по проекту «ЗС 668-20» - Золотое Сечение
Дом по проекту «ЗС 668-20» - Золотое Сечение
Застройщик: Золотое Сечение
237.0 м²
1 / 3
🏠
237.0 м²
🛏
3 спален
🚿
3 санузл.
🧱
Газобетонный блок/керамический блок/кирпич
Похожие проекты
Похожие по цене
Похожие по площади
Проект G-198-1D
2 этаж
от 29 610 000 ₽
→
Проект R-361-1K
3 этаж
от 29 602 000 ₽
→
Коттедж в стиле Райта «Лимбург»
5 спальн. · 5 санузл. · 2 этаж
от 29 586 000 ₽
→
Дом Озерецкое из газобетона: заказать в Москве по низкой цене
3 спальн. · 2 санузл. · 2 этаж
от 10 400 000 ₽
→
Дом Озерецкое из кирпича: заказать в Москве по низкой цене
3 спальн. · 2 санузл. · 2 этаж
от 10 400 000 ₽
→
ПД - 237 - Строительство домов из Каркаса, СИП, Бруса под ключ
4 спальн. · 4 санузл. · 2 этаж
от 5 080 000 ₽
→
На сайт застройщика