Перейти к контенту
Подбор и сравнение проектов домов от застройщиков Московской области
Подборщик домов
Калькулятор сметы
Калькулятор площади
Форум
Блог
Главная
›
Каталог проектов
›
ПД - 237 - Строительство домов из Каркаса, СИП, Бруса под ключ
ПД - 237 - Строительство домов из Каркаса, СИП, Бруса под ключ
Застройщик: Стройград
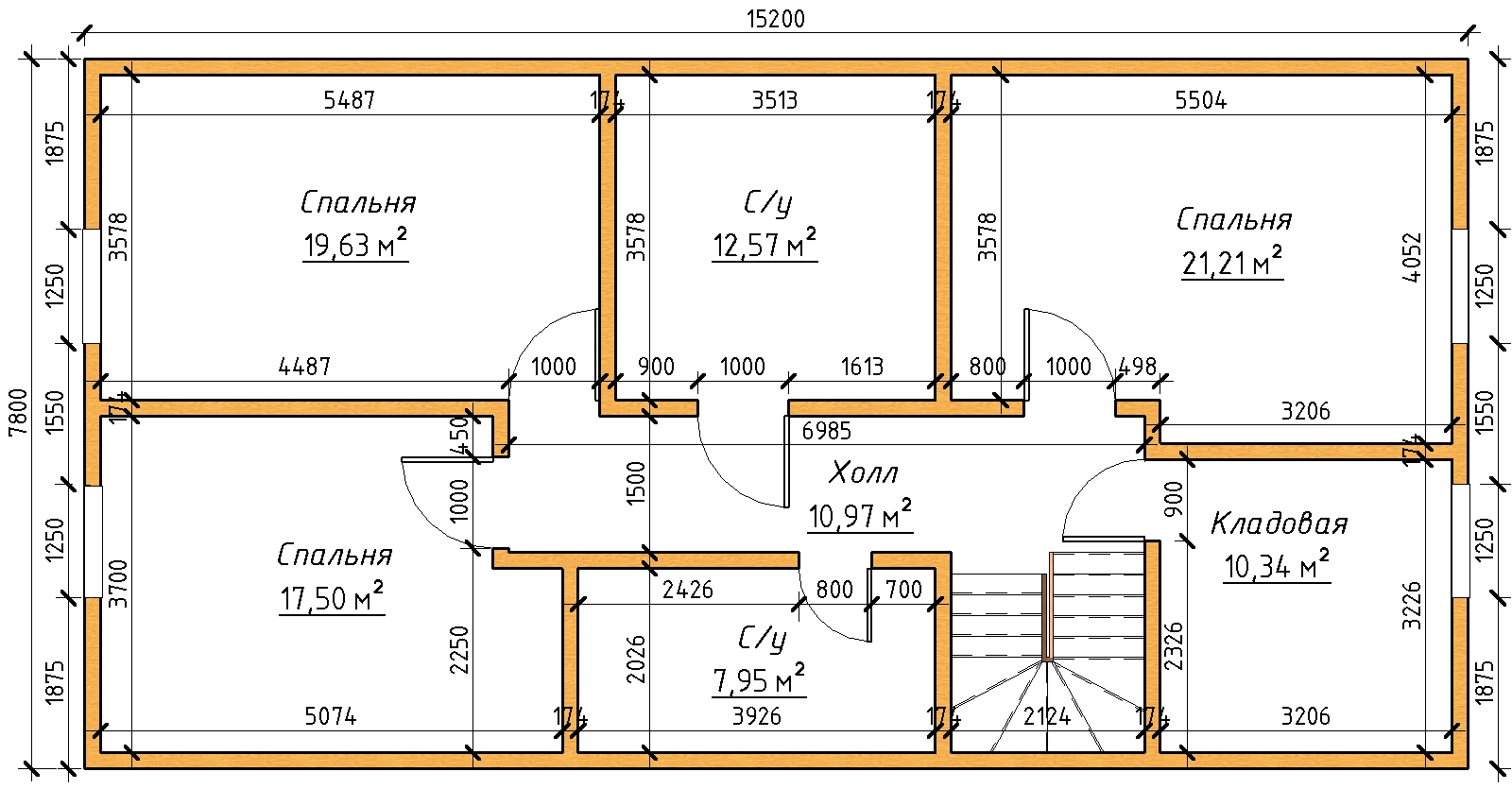
237.0 м²
1 / 3
🏠
237.0 м²
🛏
4 спален
🚿
4 санузл.
📐
2 этаж
Похожие проекты
Похожие по цене
Похожие по площади
Проект К-44 9 на 8, площадью 154 за 5 076 000 руб
4 спальн. · 2 этаж
от 5 076 000 ₽
→
Проект дома AS-737-2
2 этаж
от 5 071 600 ₽
→
Проект К-76 14 на 9, площадью 129 за 5 089 500 руб
3 спальн. · 1 этаж
от 5 089 500 ₽
→
Дом Озерецкое из газобетона: заказать в Москве по низкой цене
3 спальн. · 2 санузл. · 2 этаж
от 10 400 000 ₽
→
Дом Озерецкое из кирпича: заказать в Москве по низкой цене
3 спальн. · 2 санузл. · 2 этаж
от 10 400 000 ₽
→
Дом по проекту «ЗС 668-20» - Золотое Сечение
3 спальн. · 3 санузл.
от 29 625 000 ₽
→
На сайт застройщика