Перейти к контенту
Подбор и сравнение проектов домов от застройщиков Московской области
Подборщик домов
Калькулятор сметы
Калькулятор площади
Форум
Блог
Главная
›
Каталог проектов
›
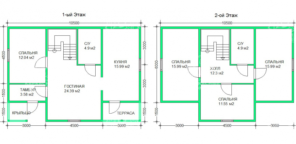
Каркасный дом 10,5×7,5 проект «Гиацинт» Проект "Гиацинт"
Каркасный дом 10,5×7,5 проект «Гиацинт» Проект "Гиацинт"
Застройщик: Каркасные дома RU
148.5 м²
1 / 2
🏠
148.5 м²
🛏
4 спален
🚿
1 санузл.
📐
2 этаж
🧱
Каркас
Похожие проекты
Похожие по цене
Похожие по площади
Барн 3
3 спальн. · 1 санузл. · 1 этаж
от 2 460 000 ₽
→
Проект дома «Солнечногорск» | ЭкоТех
2 спальн. · 1 санузл. · 1 этаж
от 2 461 000 ₽
→
«Ситцевый»
2 этаж
от 2 462 276 ₽
→
Проект дома W-148-1P
2 этаж
от 10 395 000 ₽
→
Каркасный дом «Фрезия» | ЭкоТех
3 спальн. · 2 санузл. · 1 этаж
от 7 095 000 ₽
→
Гермес (9x9)
5 спальн. · 2 санузл. · 2 этаж
от 8 486 000 ₽
→
На сайт застройщика