Перейти к контенту
Подбор и сравнение проектов домов от застройщиков Московской области
Подборщик домов
Калькулятор сметы
Калькулятор площади
Форум
Блог
Главная
›
Каталог проектов
›
Проект К-215 9 на 16, площадью 279 за 9 369 000 руб
Проект К-215 9 на 16, площадью 279 за 9 369 000 руб
Застройщик: КаркасСтрой
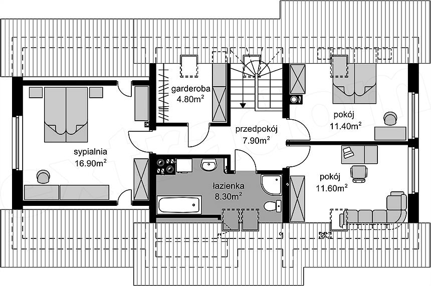
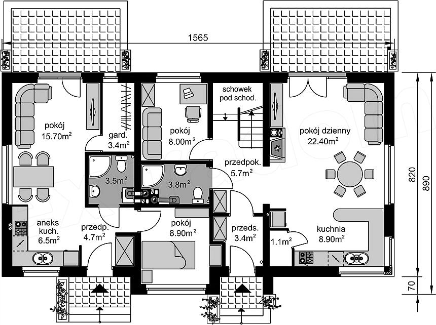
279.0 м²
1 / 3
🏠
279.0 м²
🛏
6 спален
📐
2 этаж
🧱
Каркас
Похожие проекты
Похожие по цене
Похожие по площади
Проект M-110-1P
2 этаж
от 7 814 100 ₽
→
Проект каркасного дома КП-888
2 спальн. · 1 этаж
от 7 818 000 ₽
→
Проект каркасного дома КП-02ВС
1 этаж
от 7 805 000 ₽
→
Дом КП Истра
3 спальн. · 3 санузл. · 2 этаж
от 12 920 000 ₽
→
Дом КП Истра
3 спальн. · 3 санузл. · 2 этаж
от 12 920 000 ₽
→
Проект дома «Шайло» с цоколем
7 спальн. · 2 этаж
от 12 394 000 ₽
→
На сайт застройщика