Перейти к контенту
Подбор и сравнение проектов домов от застройщиков Московской области
Подборщик домов
Калькулятор сметы
Калькулятор площади
Форум
Блог
Главная
›
Каталог проектов
›
Проект M-110-1P
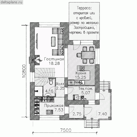
Проект M-110-1P
Застройщик: Юникс-Строй
111.63 м²
1 / 3
🏠
111.63 м²
📐
2 этаж
🧱
Пеноблок
Похожие проекты
Похожие по цене
Похожие по площади
Проект К-215 9 на 16, площадью 279 за 9 369 000 руб
6 спальн. · 2 этаж
от 7 812 000 ₽
→
Проект каркасного дома КП-888
2 спальн. · 1 этаж
от 7 818 000 ₽
→
Дом из газобетона "Юта-Лофт"
4 спальн. · 2 санузл. · 1 этаж
от 7 820 000 ₽
→
Проект двухэтажного дома "Корса" из бруса
2 спальн. · 2 этаж
от 9 207 734 ₽
→
Проект U-111-1P
2 этаж
от 7 798 000 ₽
→
Дома из керамических блоков Вилла S под ключ
3 спальн. · 2 санузл. · 2 этаж
от 8 646 200 ₽
→
На сайт застройщика