Перейти к контенту
Подбор и сравнение проектов домов от застройщиков Московской области
Подборщик домов
Калькулятор сметы
Калькулятор площади
Форум
Блог
Главная
›
Каталог проектов
›
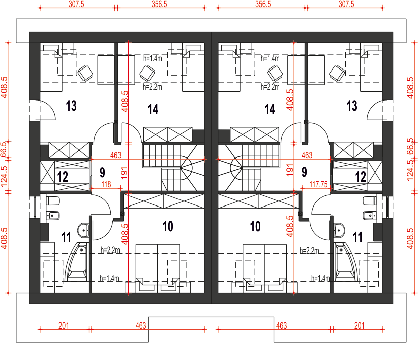
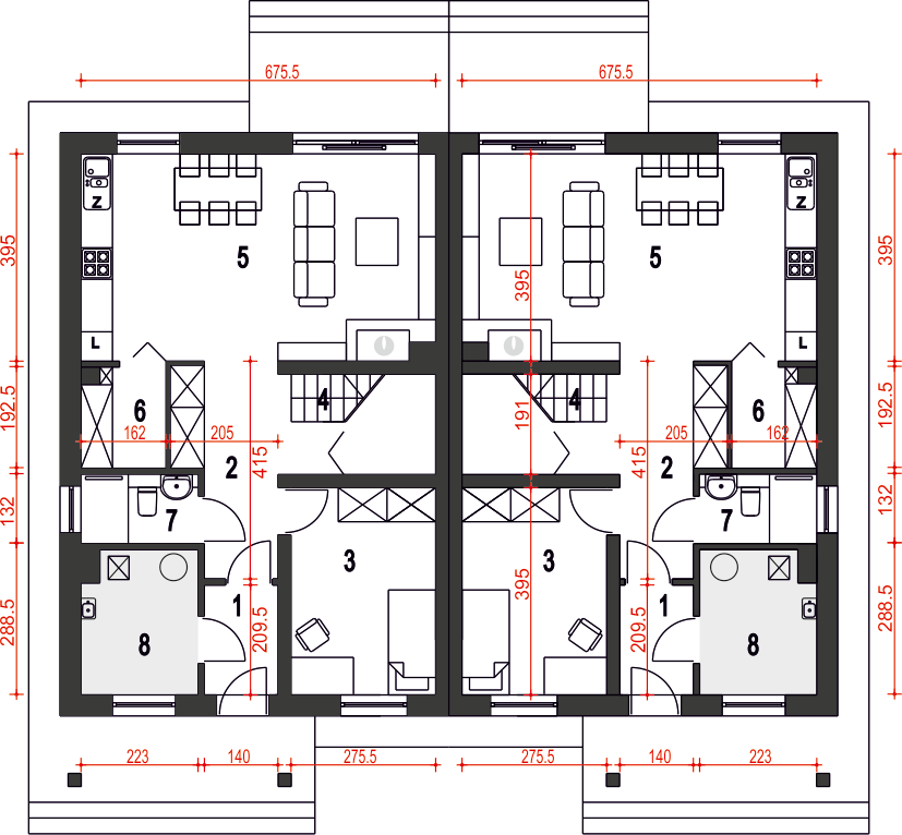
Проект К-236 13 на 14, площадью 356 за 11 932 500 руб
Проект К-236 13 на 14, площадью 356 за 11 932 500 руб
Застройщик: КаркасСтрой
356.0 м²
1 / 3
🏠
356.0 м²
🛏
4 спален
📐
2 этаж
🧱
Каркас
Похожие проекты
Похожие по цене
Похожие по площади
Проект дома «Морошка» | ЭкоТех
2 спальн. · 2 санузл. · 1 этаж
от 9 961 000 ₽
→
Дома из керамических блоков Шале M под ключ
4 спальн. · 2 санузл. · 2 этаж
от 9 960 400 ₽
→
Проект R-121-1K
1 этаж
от 9 954 800 ₽
→
Проект К-236 13 на 14, площадью 356 за 11 932 500 руб
4 спальн. · 2 этаж
от 11 932 500 ₽
→
Проект M-356-1K
2 этаж
от 29 237 100 ₽
→
Проект U-356-1K
2 этаж
от 29 244 480 ₽
→
На сайт застройщика