Перейти к контенту
Подбор и сравнение проектов домов от застройщиков Московской области
Подборщик домов
Калькулятор сметы
Калькулятор площади
Форум
Блог
Главная
›
Каталог проектов
›
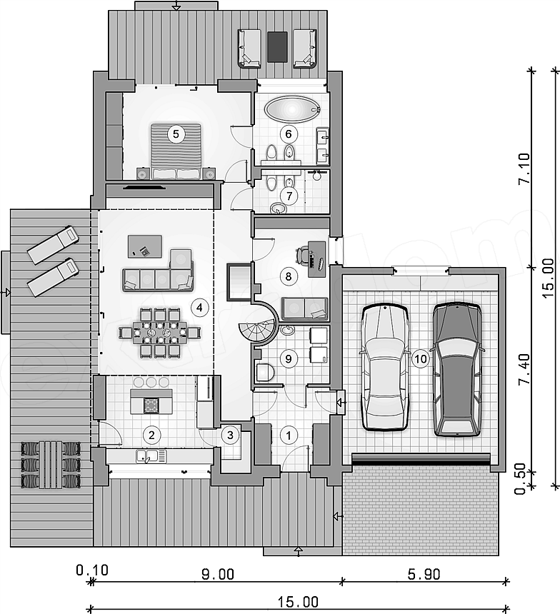
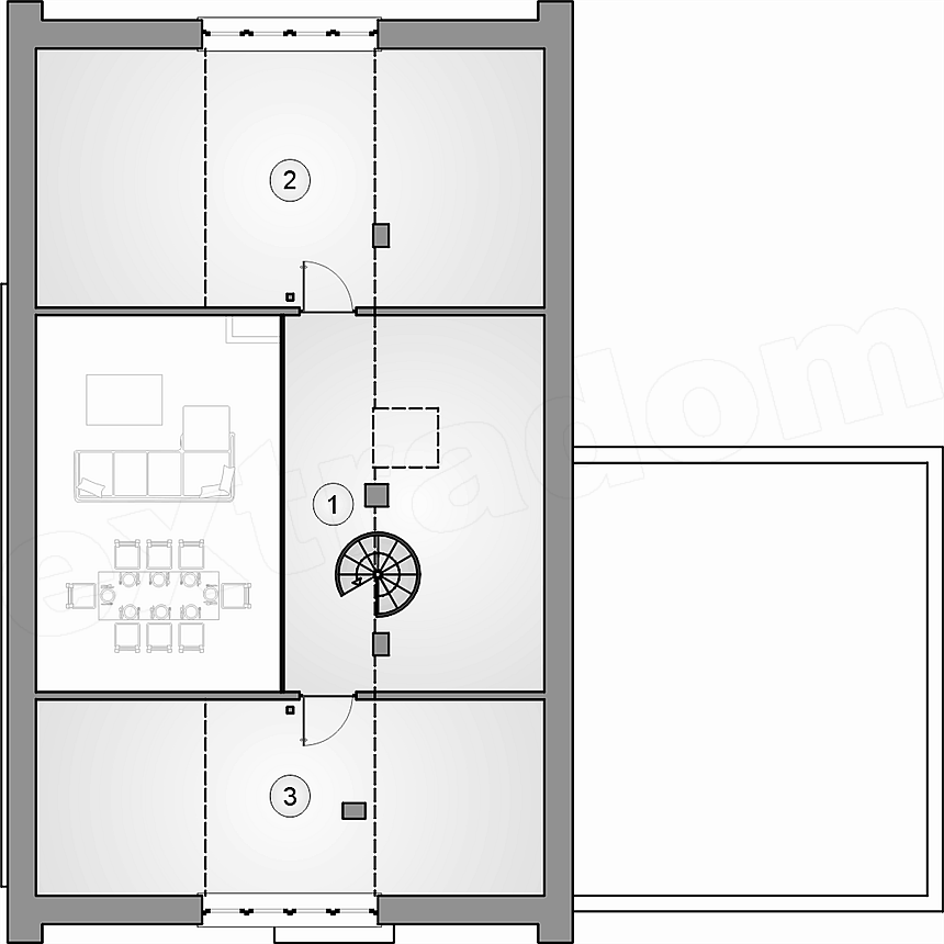
Проект К-88 15 на 15, площадью 225 за 8 943 750 руб
Проект К-88 15 на 15, площадью 225 за 8 943 750 руб
Застройщик: КаркасСтрой
225.0 м²
1 / 3
🏠
225.0 м²
🛏
2 спален
📐
1 этаж
🧱
Каркас
Похожие проекты
Похожие по цене
Похожие по площади
Проект каркасного дома КП-60МТ
1 этаж
от 6 300 000 ₽
→
Проект P-042-1D
1 этаж
от 6 300 000 ₽
→
Альпиец 3
4 спальн. · 2 санузл. · 2 этаж
от 6 299 800 ₽
→
Каркасный дом «Приморск
от 13 185 000 ₽
→
Дом по проекту «Вердер» - Золотое Сечение
3 спальн. · 2 санузл.
от 28 125 000 ₽
→
Проект К-88 15 на 15, площадью 225 за 8 943 750 руб
2 спальн. · 1 этаж
от 8 943 750 ₽
→
На сайт застройщика