Перейти к контенту
Подбор и сравнение проектов домов от застройщиков Московской области
Подборщик домов
Калькулятор сметы
Калькулятор площади
Форум
Блог
Главная
›
Каталог проектов
›
Проект G-077-1K
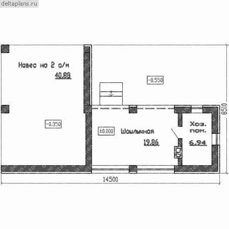
Проект G-077-1K
Застройщик: Юникс-Строй
76.8 м²
1 / 2
🏠
76.8 м²
📐
1 этаж
🧱
Кирпич
Похожие проекты
Похожие по цене
Похожие по площади
Альпиец 3
4 спальн. · 2 санузл. · 2 этаж
от 6 299 800 ₽
→
Проект каркасного дома КП-60МТ
1 этаж
от 6 300 000 ₽
→
Проект К-88 15 на 15, площадью 225 за 8 943 750 руб
2 спальн. · 1 этаж
от 6 300 000 ₽
→
Мечта 8
2 этаж
от 3 319 800 ₽
→
Проект двухэтажного коттеджа "Свеча-5" из газобетона
1 спальн. · 3 этаж
от 4 209 000 ₽
→
Проект одноэтажного каркасного дома "Проксима"
2 спальн. · 2 этаж
от 5 806 421 ₽
→
На сайт застройщика