Перейти к контенту
Подбор и сравнение проектов домов от застройщиков Московской области
Подборщик домов
Калькулятор сметы
Калькулятор площади
Форум
Блог
Главная
›
Каталог проектов
›
Проект каркасного дома КП-50
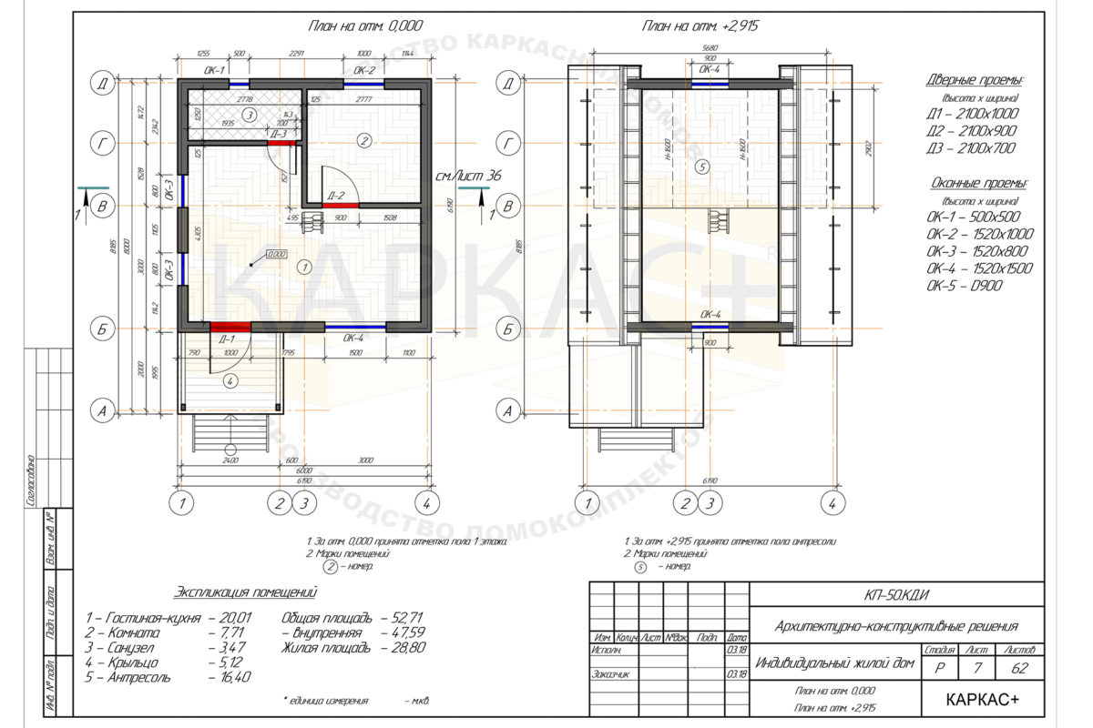
Проект каркасного дома КП-50
Застройщик: КАРКАС+
52.71 м²
1 / 2
🏠
52.71 м²
📐
1 этаж
🧱
Каркас
Похожие проекты
Похожие по цене
Похожие по площади
Проект каркасного дома КП-63
1 этаж
от 3 300 000 ₽
→
Каркасный дом 12x8 Проект "Топаз"
3 спальн. · 1 санузл.
от 3 300 000 ₽
→
ПД - 150-2 - Строительство домов из Каркаса, СИП, Бруса под ключ
3 спальн. · 2 санузл. · 2 этаж
от 3 300 000 ₽
→
Проект M-052-1D
1 этаж
от 7 897 500 ₽
→
Проект Y-056-1S
1 этаж
от 1 041 145 ₽
→
Каркасный дом 5x6 Проект "Гематит"
1 спальн. · 1 этаж
от 1 569 000 ₽
→
На сайт застройщика