Перейти к контенту
Подбор и сравнение проектов домов от застройщиков Московской области
Подборщик домов
Калькулятор сметы
Калькулятор площади
Форум
Блог
Главная
›
Каталог проектов
›
Проект дома из газоблоков 17х14 ГББ-277: цена 11367000 руб.
Проект дома из газоблоков 17х14 ГББ-277: цена 11367000 руб.
Застройщик: Кир-Бет
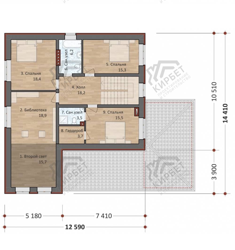
276.4 м²
1 / 3
🏠
276.4 м²
🛏
5 спален
🚿
4 санузл.
📐
2 этаж
🧱
Газобетон
Похожие проекты
Похожие по цене
Похожие по площади
Проект дома из газоблоков 21х18 ГББ-218: цена 135920000 руб.
4 спальн. · 2 санузл. · 1 этаж
от 16 956 000 ₽
→
Проект F-208-1K
2 этаж
от 16 956 780 ₽
→
Проект дома H-243-1P
3 этаж
от 16 951 900 ₽
→
Проект дома из керамоблоков 17х14 ТКБ-277: цена 11130000 руб.
5 спальн. · 4 санузл. · 2 этаж
от 18 641 000 ₽
→
Проект H-276-1K
3 этаж
от 22 656 600 ₽
→
Проект A-419-1P
3 этаж
от 19 362 000 ₽
→
На сайт застройщика