Перейти к контенту
Подбор и сравнение проектов домов от застройщиков Московской области
Подборщик домов
Калькулятор сметы
Калькулятор площади
Форум
Блог
Главная
›
Каталог проектов
›
Проект H-276-1K
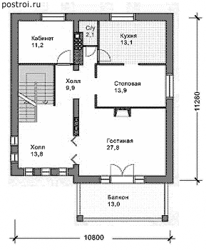
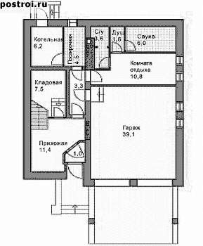
Проект H-276-1K
Застройщик: Юникс-Строй
276.3 м²
1 / 4
🏠
276.3 м²
📐
3 этаж
🧱
Кирпич
Похожие проекты
Похожие по цене
Похожие по площади
Проект G-151-1D
2 этаж
от 22 665 000 ₽
→
Проект G-276-1K
2 этаж
от 22 646 760 ₽
→
Проект M-151-1D
2 этаж
от 22 666 500 ₽
→
Проект дома из газоблоков 17х14 ГББ-277: цена 11367000 руб.
5 спальн. · 4 санузл. · 2 этаж
от 16 955 000 ₽
→
Проект дома из керамоблоков 17х14 ТКБ-277: цена 11130000 руб.
5 спальн. · 4 санузл. · 2 этаж
от 18 641 000 ₽
→
Проект G-276-1K
2 этаж
от 22 646 760 ₽
→
На сайт застройщика