Перейти к контенту
Подбор и сравнение проектов домов от застройщиков Московской области
Подборщик домов
Калькулятор сметы
Калькулятор площади
Форум
Блог
Главная
›
Каталог проектов
›
Проект G-151-1D
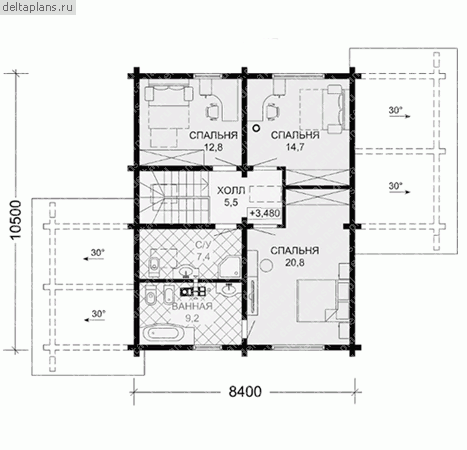
Проект G-151-1D
Застройщик: Юникс-Строй
151.1 м²
1 / 3
🏠
151.1 м²
📐
2 этаж
🧱
Дерево
Похожие проекты
Похожие по цене
Похожие по площади
Проект M-151-1D
2 этаж
от 22 666 500 ₽
→
Проект H-276-1K
3 этаж
от 22 656 600 ₽
→
Проект дома M-324-1P
3 этаж
от 22 680 000 ₽
→
Проект W-152-1K
1 этаж
от 12 390 200 ₽
→
Проект M-151-1D
2 этаж
от 22 666 500 ₽
→
Каркасный дом «Тихвин
от 7 570 000 ₽
→
На сайт застройщика